產品介紹
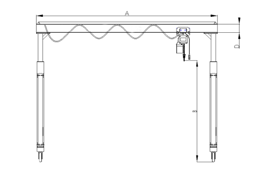
歐標單粱橋式起重機是新一代的革新產品,性能憂越,結構緊湊,凈空問尺寸小,能充分利用廠房的有效空間。充分考慮了客戶的需求,使客戶在使用過程中增加了安全性和舒適性。標準2置為小車變頻和大車變頻,使行車運行平穩、可靠,可根據客戶 現場工況的需要配起升變頻或雙葫蘆運行。起重量20T,跨度30米。


| 型號 | 額定載重(T) | 總高度(MM) | 額定吊高(MM) | 外跨(MM) | 內跨(MM) | H值(MM) |
| Pt1-1 | 1 | 2000 | 1390 | 2000 | 1760 | |
| 1 | 3000 | 2390 | 3000 | 2760 | 410 | |
| 1 | 4000 | 3390 | 4000 | 3760 | 410 | |
| 1 | 5000 | 4390 | 4000 | 3760 | 410 | |
| 1 | 5000 | 4340 | 5000 | 4760 | 410 | |
| 1 | 6000 | 5340 | 5000 | 4760 | 410 | |
| 2 | 2000 | 1215 | 2000 | 1720 | 535 | |
| 2 | 3000 | 2215 | 3000 | 2720 | 535 | |
| 2 | 4000 | 3215 | 4000 | 3720 | 535 | |
| 2 | 5000 | 4215 | 4000 | 3720 | 535 | |
| 2 | 5000 | 4215 | 5000 | 4720 | 535 | |
| 2 | 6000 | 5215 | 5000 | 4720 | 535 | |
| 3 | 2000 | 1015 | 2000 | 1660 | 685 | |
| 3 | 3000 | 2015 | 3000 | 266 | 685 | |
| 3 | 4000 | 3015 | 4000 | 3660 | 685 | |
| 3 | 5000 | 4015 | 4000 | 3660 | 685 | |
| 3 | 5000 | 4015 | 5000 | 4660 | 685 | |
| 3 | 6000 | 5015 | 5000 | 4660 | 685 | |
| 5 | 2000 | 910 | 2000 | 1560 | 740 | |
| 5 | 3000 | 1910 | 3000 | 2560 | 740 | |
| 5 | 4000 | 2910 | 4000 | 3560 | 740 | |
| 5 | 5000 | 3910 | 4000 | 3560 | 740 | |
| 5 | 5000 | 3910 | 5000 | 4560 | 740 | |
| 5 | 6000 | 4910 | 5000 | 4560 | 740 | |
| 10 | 2000 | 670 | 2000 | 1560 | 880 | |
| 10 | 3000 | 1670 | 3000 | 2560 | 880 | |
| 10 | 4000 | 2670 | 4000 | 3560 | 880 | |
| 10 | 5000 | 3670 | 4000 | 3560 | 880 | |
| 10 | 5000 | 3670 | 5000 | 4560 | 880 | |
| 10 | 6000 | 4670 | 5000 | 4560 | 880 |